Dvosoban stan 108 m² na prodaju u Budvi – Rozino
Details
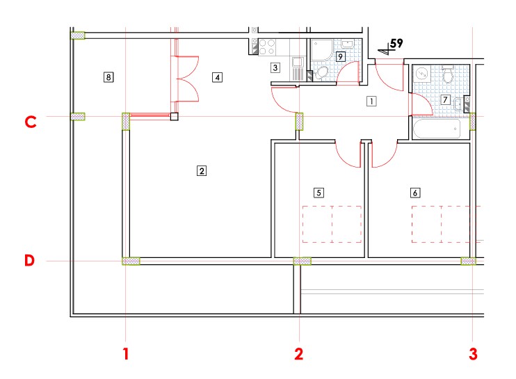
Na prodaju je prostran dvosoban stan u Budvi, smješten u naselju Rozino, jednoj od najatraktivnijih i najtraženijih lokacija za stanovanje i investiranje. Stan se nalazi na 7. spratu stambene zgrade i ima ukupnu površinu od 108 m². Stan je namješten i spreman za useljenje.
Struktura stana obuhvata dvije spavaće sobe, dva kupatila, komforan dnevni boravak povezan sa kuhinjom i trpezarijom, kao i terasu na koju se izlazi direktno iz dnevne sobe. Otvoren raspored dnevne zone i velika kvadratura pružaju maksimalnu funkcionalnost i osjećaj prostranosti.
Stan je idealan za porodično stanovanje, ali i kao investicija za izdavanje, s obzirom na izuzetnu lokaciju i potražnju za nekretninama u Budvi. Naselje Rozino nudi kompletnu infrastrukturu – u neposrednoj blizini se nalaze prodavnice, škole, restorani, kafići i svi neophodni gradski sadržaji.
Ova nekretnina predstavlja odličnu priliku za kupovinu dvosobnog stana u Budvi, kako za život, tako i za ulaganje.
Cijena: 280.800 €

Za sve dodatne informacije i zakazivanje obilaska stana, slobodno nas kontaktirajte putem telefona ili e-maila.
- Property type: Apartments
- Offer type: Prodaja , Prodaja stanovi
- City: Budva




